Skip to Content

NEW: Now serving clients nationwide with offices in Chattanooga & Cincinnati Get a Quote

423-322-1474

Material Schedules for Estimating

Material Schedule Example

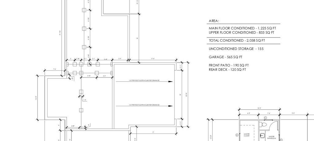
Material Schedules for Estimating & Budgeting

Know Your Space provides precise material schedules derived from our laser-accurate as-built documentation. These detailed breakdowns support financial planning, cost estimation, and resource allocation for projects of any scale.

What We Provide

  • Detailed material quantity takeoffs from 3D models
  • Area and volume calculations for estimating
  • Organized Excel spreadsheets for direct integration with estimating software
  • Room-by-room and system-by-system breakdowns
  • Custom reporting formats tailored to your workflow

Benefits

  • Reduce cost overruns with accurate quantity data
  • Streamline bidding with comprehensive material lists
  • Improve budget accuracy for owners and project managers
  • Support value engineering with detailed breakdowns

Request a Quote →